28.05.2021
připravila: Dana Klomínková
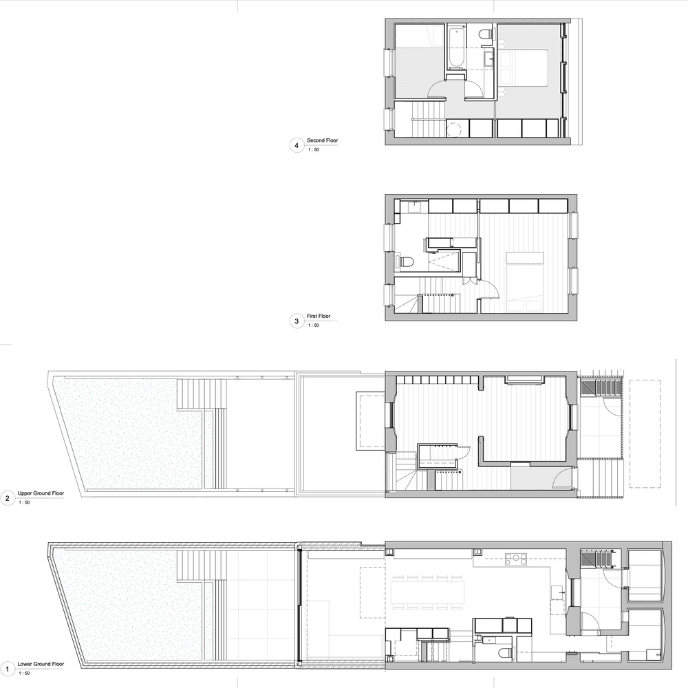
Architekti ze studia Moxon Architects zrekonstruovali viktoriánský řadový dům v Londýně, v městské části Islington. Úzká čtyřpodlažní nemovitost se nachází v památkové zóně Arlington Square Conservation Area.
Přáním klientů bylo vytvoření moderního bydlení na rozloze 165 m2 s řadou otevřených prostor v jednoduchém stylu.
Foto: archiv redakce
Architekti při rekonstrukci dbali na to, aby byla zachována hierarchie společenských místností ve spodní části domu a soukromá zóna v horních patrech.
Foto: archiv redakce
Foto: archiv redakce
Výchozím bodem návrhu byl vznik obytného prostoru, který se otevírá do zadní zahrady orientované na jih. Původní dispozice domu byla oddělena od zadní zahrady, což byla největší překážka pro majitele a následně velká výzva pro architekty. Aby se maximalizoval potenciál úzkého pozemku, došlo k výkopu pod úroveň terénu. Stávající zapuštěná terasa byla tak dále snížena, čímž se vytvořil obývací prostor s kuchyní a jídelnou, který se otevírá do zahrady.
Foto: archiv redakce
V souladu s estetickými požadavky majitele, architekti použili v celém interiéru vizuálně čisté materiály - bílé betonové cihly, umělý kámen Corian, litou pryskyřičnou podlahu, dubové dřevo a mramor. Vše slouží jako efektní pozadí pro uměleckou sbírku majitelů, moderní nábytek a osvětlení.
Foto: archiv redakce
Foto: archiv redakce
Důkazem, že majitelům nechybí nadšení pro design je např. závěsné svítidlo PH5 dánské značky Louis Poulsen v jídelně, na míru vyrobený kuchyňský nábytek, úložné prostory a jídelní stůl místní od firmy Jack Trench, podlahy Dinesen a vybavení koupelny Duravit a Vola.
Foto: archiv redakce
Dobové prvky ve vstupní hale, schodiště, římsy a historický krb byly zachovány a došlo pouze k jejich renovaci. Pokoje v horních patrech se výrazně liší, a to jak ve stylu, tak v barevném provedení.
Foto: archiv redakce
Foto: archiv redakce
***
Moxon Architects
Architektonické studio Moxon bylo založeno v roce 2004. Od té doby přitahuje významné klienty v různých odvětvích, od národních poskytovatelů železniční dopravy po přední kulturní instituce. Mezi nimi např. Transport for London, Hauser & Wirth a the City of Westminster.
Architektům je vlastní odvážná vize a všestrannost. Poskytují multidisciplinární řešení od komerčního, rezidenčního, produktového designu po veřejný sektor. V současnosti působí v západním Londýně a Highland Aberdeenshire.
Foto: Alexandria Hall & Jack Trench




