21.09.2020
připravila: Dana Klomínková
Autorem stavby na ostrově Mallorca je architektonické studio OHLAB.
MM House byl navržený podle přísných certifikačních kritérií německého Passivhaus Institutu pro pasivní domy v Darmstadtu s cílem dosáhnout maximální energetické účinnosti a vnitřní pohody.

Na kvalitu a správnou funkci MM HOUSE má vliv nejen architektura stavby, ale i umístění na pozemku a orientace do světových stran. Při navrhování a projektování se kladl velký důraz na kritéria energetických úspor při provozu domu a stavbě předcházela důkladná studie.

Použití kvalitních komponent a efektivní technologie je nezbytnou součástí každého projektu pasivního domu. Právě v tomto případě architekti museli dbát na vhodný výběr izolačních okenních rámů, účinných ventilačních jednotek, zasklení umožňující čistý solární zisk a dalších prvků s danými parametry odpovídající certifikaci PASSIVHAUS.

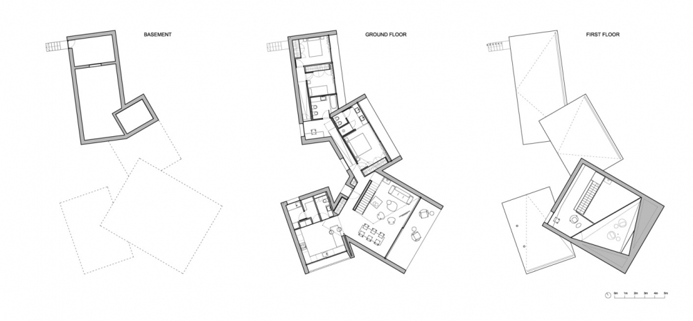
Podle hlavních zásad pro pasivní domy se vnitřní dispozice řídí stejným pravidlem jako prosklení. Na jih se umísťují pobytové místnosti s větším prosklením a potřebou přirozeného osvětlení, na sever pak prostory s minimální potřebou oken, např. vstup, schodiště, technická místnost, toaleta či koupelna.

Součástí rozsáhlé stavby rozdělené do čtyř bloků je kuchyň, obývací pokoj s jídelnou, hlavní ložnice a pokoje pro hosty. Každá část může fungovat dohromady i samostatně. Architekti v rámci vnitřních dispozic ložnici umístili na východ s výhledem do zahrady a na bývalý královský hrad Castell de Bellver.

Pobytové místnosti s velkými okny jako je obývací pokoj, kuchyň a jídelna směřují na jih a jihovýchod, kde je značná potřeba přirozeného světla. Obyvatelé se navíc mohou kochat výhledem na moře a do zahrady. Nad obývacím pokojem se nachází zčásti krytá terasa.

Celý návrh domu respektoval požadavek na maximální energetickou účinnost, tedy nejnižší spotřebu energie. Roli tak hrálo využití slunečního záření a udržení získané energie. Z vnější strany je instalován zateplovací fasádní systém, který umožňuje snížit úniky tepelné energie a během horkých letních dní dokáže snížit teplotu v domě. V zateplené konstrukci navíc nedochází ke kondenzaci vodních par.

Výměna vzduchu se provádí řízeným větráním prostřednictvím tepelného výměníku.

Dům MM ročně spotřebuje pouze 11 kilowatthodin na metr čtvereční vytápěné plochy oproti běžným stavbám na Mallorce, kde se číslo pohybuje od 85 do 100 kWh/m2a.
Ocenění MM House:
WORLD ARCHTIECTURE FESTIVAL 2016
X NAN AWARD 2016
AAP (American Architecture Prize) 2016
Record Houses Awards 2017
IEDesign Awards 2017

OHLAB
Architektonické studio OHLAB se věnuje projektům ve Španělsku i v zahraničí. Studio založila dvojice architektů Paloma Hernaiz a Jaime Oliver v Šanghaji, poté se přestěhovali do Madridu a v současné době je jejich hlavní kancelář v Palma de Mallorca.
OHLAB získal řadu ocenění za svou práci na designu a udržitelnosti, například cenu Best House of the Year Award v roce 2017, cenu za nejlepší ekologický design za rok 2017 od IED, ceny Best of the Year 2016, 2014 a 2012, WIN Awards 2016, 2014 a 2012; Great Indoors Awards 2013 a mnoho dalších. Kancelář byla také nominována na cenu Evropské unie za současnou architekturu - Cena Miese van der Rohe 2011.
Foto: José Hevia




