25.12.2020
připravila: Dana Klomínková
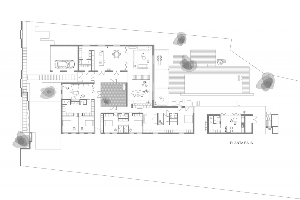
Dům Mouette s rozlohou 654m2 se nachází ve městě Valladolid v severní části centrálního Španělska. Průmyslové město Valladolid je nejlidnatějším městem na území autonomního společenství Kastilie a León.
Stavba navržená španělskými architektonickými studii Estudio Bespoke a longo+roldán arquitectos má podobu písmene L, do jehož vnitřní části je umístěný venkovní bazén a terasa.
Foto: archiv redakce
Foto: archiv redakce
Už od začátku projekt domu Mouette podléhal tvaru pozemku daným plánovanou výstavbou ulice.
Foto: archiv redakce
Foto: archiv redakce
Hlavní část dvoupodlažního domu je navržená okolo vnitřního dvorku, patia. Nezastřešený vnitřní dvůr vytváří nezbytnou střední část, ze které mají obyvatelé přístup do všech místností domu.
Foto: archiv redakce
Foto: archiv redakce
Prostory domu jsou dostatečně prosvětlené. Světlo z jihu a východu proniká do kuchyně a obývací části.
Foto: archiv redakce
Obývací pokoj je rozdělený minimalistickým schodištěm, které vede do pracovny v prvním patře.
Foto: archiv redakce
Po obvodu ve dvojnásobné výšce společenské části vede ocelová lávka představující přístupovou plochu v prvním patře domu.
Foto: archiv redakce
Nejvíce zastoupenými materiály jsou beton, cihly a ocel. Ty spolu s plochou střechou zdůrazňují industriální charakter domu, který zbavený zbytečné rafinovanosti sleduje hlavní princip funkcionalistické architektury.
Foto: archiv redakce
Foto: archiv redakce
Estudio Bespoke
Estudio Bespoke je nezávislé architektonické studio, které vytváří osobité prostory. V rámci své práce poskytují vlastní design, vyvíjí koncepty, které jsou pro každý projekt podrobně rozpracovány. Kladou důraz na úzkou spolupráci s klienty, což jim umožňuje získat podrobné informace a přizpůsobit návrh požadovaným potřebám budoucích majitelů.
Foto: archiv redakce
Foto: archiv redakce
https://www.estudiobespoke.com/
Foto: Cesar F. Prados




